8 800 555 35 45

Пн - Вс 10:00 - 22:00

Сравнение

8 800 555 35 45

Пн - Вс 10:00 - 22:00

Лодочный мотор 4-х тактный Suzuki DF300APXX, мощность 300 л.с., цвет белый

Артикул: DF300APXX_white

Много

2 710 000 руб. за 1 шт

Описание

Технические характеристики
Описание

Лодочный мотор 4-х тактный Suzuki DF300APXX, мощность 300 л.с., цвет белый

Suzuki DF300APXX — это мощный и надёжный четырёхтактный подвесной лодочный мотор японского производства, разработанный для требовательных судовладельцев, ценящих сочетание высокой производительности, экономичности и долговечности. Мотор обеспечивает выдающуюся мощность 300 л.с., работая на стандартном низкооктановом топливе (АИ-92), что делает его одним из самых практичных решений в своём классе.

ПРЕИМУЩЕСТВА

  • Премия NMMA: удостоен специальной награды за инновации.
  • Революционная экономичность: обновлённый DF300AP на 15% экономичнее предыдущей модели DF300 благодаря системе Lean Burn и новому датчику кислорода (O2) в отработанных газах.
  • Редуктор с выбором вращения винта (правое/левое): уникальная технология позволяет установить тандем моторов без поиска двигателя с контрвращением. Достаточно переключить один из моторов в режим обратного вращения, сменив специальный соединитель, и установить соответствующий винт.
  • Suzuki Precision Control (SPC): электрическая система управления заменяет традиционные тросы, что кардинально упрощает установку нескольких постов управления или моторов.
  • Интегрированный топливный фильтр-водоотделитель с датчиком: защищает дорогостоящую систему впрыска от воды в топливе. При превышении уровня воды срабатывает визуальная и звуковая сигнализация.

ТЕХНОЛОГИИ

  • Усовершенствованная система Lean Burn: интеллектуально регулирует состав топливно-воздушной смеси для оптимального расхода.

V-образный 6-цилиндровый 24-клапанный двигатель (4028 см³) с алюминиевым блоком SCEM гарантирует исключительный запас прочности.

Прямой двухступенчатый воздухозаборник надёжно отделяет брызги, подавая в двигатель только сухой и охлаждённый воздух.

Всесторонняя защита двигателя и экипажа. Мотор оснащён комплексной интеллектуальной системой предупредительной сигнализации, которая через многофункциональный дисплей и зуммер предупреждает водителя о нештатных ситуациях, а в критических случаях автоматически ограничивает работу двигателя для предотвращения повреждений.

  • Контроль основных параметров: система отслеживает низкое давление масла, перегрев двигателя, высокую температуру масла, низкое напряжение аккумулятора, наличие воды в топливе.
  • Ограничитель оборотов: при превышении максимально допустимых оборотов система автоматически снижает скорость двигателя.
  • Система диагностики двигателя (Check Engine): обнаруживает сбои в работе датчиков и систем управления.

Автоматическое оповещение о заглохшем двигателе.

УПРАВЛЕНИЕ И КОНТРОЛЬ

Многофункциональный прибор (Multi Function Gauge) в базовой комплектации. Отображает всю ключевую информацию: обороты, скорость, расход и уровень топлива, температуру, напряжение, часы наработки, навигационные данные (с GPS) и диагностические сообщения.

  • Интеллектуальная система напоминания о замене масла: ведёт учёт моточасов и своевременно информирует о необходимости планового ТО. После замены масла систему можно легко сбросить.

Гидравлический подъёмник-трим (Power Trim & Tilt) с Automatic Trim для оптимального дифферента лодки.

КОМПЛЕКТАЦИЯ

  • Базовая комплектация: двигатель DF300APXX, гребной винт, многофункциональный прибор (MFG), крепёжные элементы (болты, шайбы, гайки), инструменты, руководство по эксплуатации.
  • Приобретаются отдельно: комплект дистанционного управления (рукоятка, тросы/кабель SPC) и кабели подключения, аккумулятор, топливный бак.

ТЕХОБСЛУЖИВАНИЕ

ВАЖНО! Перед первым запуском необходимо залить моторное масло в картер (8,0 л) и трансмиссионное масло в редуктор (1,1 л).

  • Топливо: Неэтилированный бензин с октановым числом не менее 91 (АИ-92). Допускается использование бензино-этаноловых смесей E10 (до 10% этанола). Настоятельно рекомендуется установить внешний топливный фильтр-водоотделитель.

Масла (оригинальные продукты Suzuki обеспечивают максимальный ресурс):

  • Моторное: Suzuki Marine 4-Cycle Engine Oil SAE 10W-40 (или 10W-30), сертифицированное по стандарту NMMA FC-W.
  • Трансмиссионное: Suzuki Outboard Gear Oil или гипоидное масло SAE 90 GL-5 (API GL-5).
  • Аккумулятор: рекомендуемая минимальная ёмкость — 130 Ач (ток запуска: 1000 А MCA или 800 А CCA).
  • Обкатка: строгий период обкатки — 10 часов. Первые 2 часа — без превышения 3000 об/мин, следующие 7 часов — избегать работы на полной мощности более 5 минут подряд.
  • График ТО: первое техническое обслуживание — через 20 часов или 1 месяц (замена моторного и трансмиссионного масел, масляного фильтра). Далее — регулярное обслуживание каждые 100, 200, 300 часов согласно регламенту.

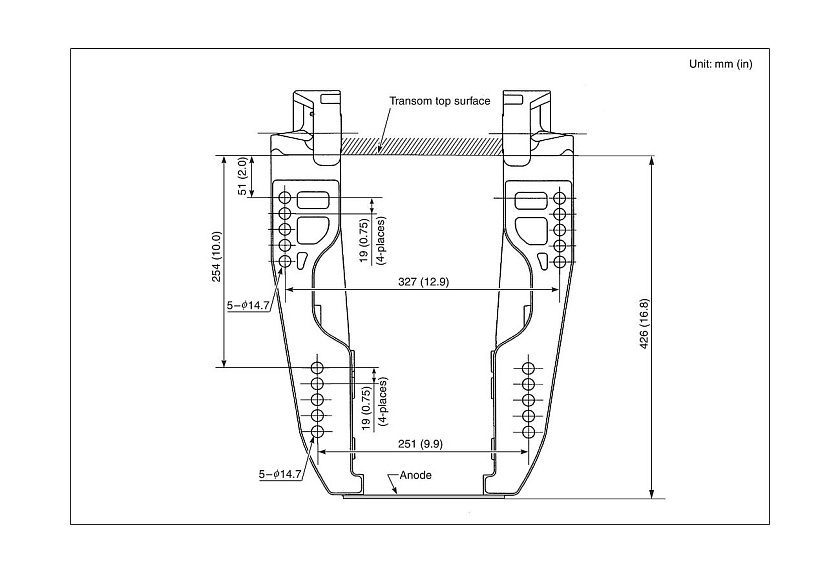
ТЕХНИЧЕСКИЕ ХАРАКТЕРИСТИКИ

  • Модель: DF300APXX
  • Цвет: белый
  • Мощность: 300 л.с. (220.7 кВт) при 6000 об/мин
  • Тип мотора: бензиновый, с электронным впрыском (EFI)
  • Тактность: 4-тактный
  • Конфигурация: V-образный, 24-клапанный, DOHC
  • Количество цилиндров: 6-цилиндровый
  • Рабочий объем: 4 028 см³
  • Диаметр и ход поршня: 98 х 89 мм
  • Степень сжатия: 9.5 : 1
  • Рабочий диапазон оборотов: 5 700 – 6 300 об/мин
  • Ограничение максимальных оборотов: 6 400 об/мин
  • Холостые обороты: 600 ± 50 об/мин
  • Тип топлива: бензин АИ-92

Подача топлива EFI

  • Система охлаждения: водяная
  • Система смазки: циркуляционная
  • Управление: дистанционное (комплектуется отдельно)
  • Система управления: электронная
  • Запуск: электростартер
  • Подъем (трим): гидроподъем
  • Транец плавсредства: 762 (XX) — длинная версия для высокого транца
  • Генератор: 12V / 54A
  • Вращение винта: правое или левое
  • Диапазон винтов: 15-27.5
  • Передаточное число редуктора: 2.08:1
  • Задний ход: есть
  • CAN шина: есть
  • Automatic Trim: есть
  • Система Lean Burn: да
  • Совместим с KSS (опция): да
  • Совместим с Troll Mode: да
  • Винт в комплекте: есть
  • Свеча зажигания (NGK): BKR6E
  • Ёмкость картера (масло): 8 литров
  • Ёмкость редуктора (масло): 1,1 литра
  • Сухой вес: 299 кг
  • Аккумулятор: 130 Ah
  • Вязкость моторного масла: SAE 10W-40 (NMMA FC-W)
  • Вязкость транс. масла: SAE 90 (API GL-5)
  • Бренд: Suzuki
  • Габаритные размеры упаковки: 75х226х113 см
  • Объем упаковки: 1,92 м³
  • Вес с упаковкой: 377 кг
г. Москва, Каширский проезд, д. 17 стр. 1
Забрать заказ Купить на месте
Нет в наличии