8 800 555 35 45

Пн - Вс 10:00 - 22:00

Сравнение

8 800 555 35 45

Пн - Вс 10:00 - 22:00

Кресло для лодки Twin 46 Flip Up с перекидной спинкой и болстером, обивка белый винил

Артикул: 15102W-MR

Нет в наличии

Описание

Технические характеристики
  • Артикул 15102W-MR
Описание

Кресло для лодки Twin 46 Flip Up с перекидной спинкой и болстером, обивка белый винил

Кресло для лодки Twin 46 Flip Up от Marine Rocket — это эталон современного морского комфорта и функциональности, разработанный для ценителей активного отдыха на воде. Модель сочетает в себе роскошный дизайн, эргономичную форму и продуманную конструкцию с перекидной спинкой и откидным передним болстером (валиком). Кресло идеально адаптируется под ваши потребности: передний болстер, выполненный в спортивном стиле, служит удобной опорой и обеспечивает надёжную поддержку при управлении лодкой стоя, а в разложенном состоянии увеличивает глубину сиденья для максимального комфорта во время отдыха сидя. Изготовленное из высококачественных морских материалов, это кресло станет стильным и долговечным элементом интерьера вашего катера.

ПРЕИМУЩЕСТВА

  • Адаптивная эргономика: уникальная система «2 в 1» с откидным болстером. В поднятом положении он создает удобную опору для управления стоя, а в опущенном — превращает кресло в просторное и глубокое сиденье для расслабленного отдыха.
  • Максимальный комфорт и поддержка: эргономичная форма спинки и мягкое сиденье с толстым наполнителем обеспечивают отличную поддержку спины даже во время долгого плавания. Перекидной механизм спинки позволяет легко регулировать положение.
  • Морское качество и долговечность: обивка из прочного морского винила устойчива к влаге, ультрафиолету, соли и истиранию. Легкий и прочный алюминиевый каркас с алюминиевыми петлями не подвержен коррозии.
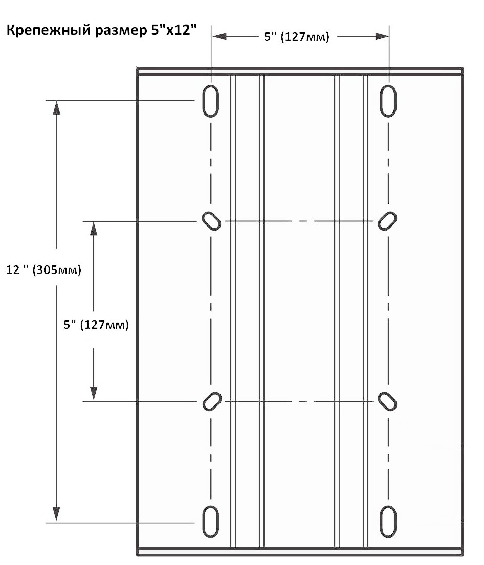
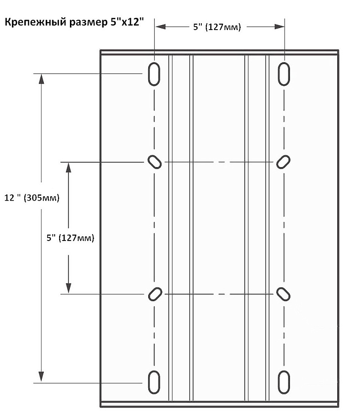
  • Простой и универсальный монтаж: стандартные крепежные размеры 5" x 12" (127 x 305 мм) позволяют легко установить кресло на большинство лодок с использованием типовых пьедесталов или прямого крепления к палубе.
  • Стильный дизайн: классический белый цвет и чистые линии впишутся в интерьер любой современной лодки или катера, добавляя ему ощущение роскоши и ухоженности.

ПРИМЕЧАНИЕ

Цветовой оттенок изделия может незначительно отличаться представленного на фото в зависимости от партии товара. Указанные расхождения в оттенке не являются браком и объясняются технологическими особенностями производства.

Производитель оставляет за собой право изменять характеристики и комплектацию в зависимости от серии поставки.

ТЕХНИЧЕСКИЕ ХАРАКТЕРИСТИКИ

  • Модель: Twin 46 Flip Up
  • Тип: кресло с перекидной спинкой и откидным болстером
  • Габаритные размеры (Д x Ш x В): 460 x 550 x 520 мм (глубина сиденья при опущенном болстере — 720 мм)
  • Крепежный размер: (шаг отверстий)5" x 12" (127 мм x 305 мм) — стандарт для большинства монтажных стоек.
  • Материал обивки: качественный морской винил (белый)
  • Материал каркаса и петель: алюминий (легкость и стойкость к коррозии)
  • Наполнитель: высокоплотный пенополиуретан, не впитывающий влагу
  • Бренд: Marine Rocket
  • Страна производителя: Китай
  • Страна производства: Китай
г. Москва, Каширский проезд, д. 17 стр. 1
Забрать заказ Купить на месте
Нет в наличии